ITS Système solaire indirect possède des ballons indirects à double échangeur qui fournit le préparateur ECS ou chaudière combi présent de la chaleur solaire thermique. L’ITS convient notamment comme chauffe-eau solaire.
ITS – Système solaire indirect
Caractéristiques
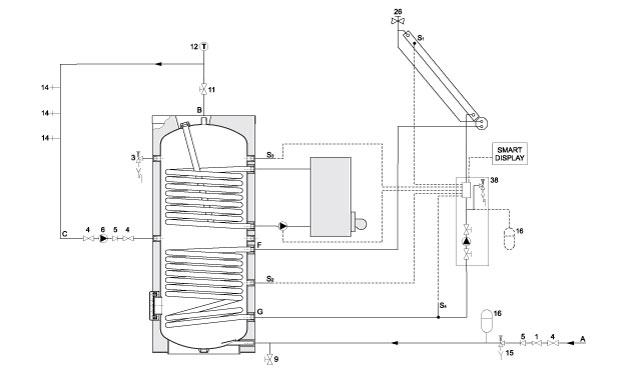
- Système solaire raccordé au chauffe-eau, ou à la chaudière de chauffage central ou à la chaudière
- Ballon de stockage ITS avec deux échangeurs de chaleur d’une contenance de 300 à 1000 litres
- En association avec la station de pompage adaptée, différents nombres de capteurs possibles
- Le système de drainback protège l’installation contre les températures de stagnation.
- La chaleur des capteurs et de l’installation existante étant transmise à l’unité ITS, le niveau de confort atteint est plus élevé.
- Lors de l’utilisation d’une station de pompage de grande taille, vous devez toujours installer un vase d’expansion pour ménager le système.
Avantages
- Créez facilement un système solaire à partir d’une installation de chaudière (existante)
ITS – Système solaire indirect
Dessins Autocad
Fichiers BIM
Étiquettes énergétiques
Manuel d'installation
Pièces détachées
Fiches produits
Fichiers REVIT
Feuille technique
Dessins Autocad
Fichiers BIM
Étiquettes énergétiques
Manuel d'installation
Pièces détachées
Fiches produits
Fichiers REVIT
Feuille technique
Spécifications Écoconception
| ITS | Profil de soutirage | Classe d'efficacité énergétique | Efficacité énergétique |
|---|---|---|---|
| 300 | C | % | |
| 400 | C | % | |
| 500 | C | % |
Service
Lorsqu’on fabrique des appareils haut de gamme, il est essentiel d’accorder une grande importance au confort de l’utilisateur et ainsi, garantir un fonctionnement irréprochable de ses produits. La satisfaction des clients pendant toute la durée de vie des produits, voilà la promesse d’A.O. Smith. Pour ce faire, A.O. Smith propose un ensemble d’assistance technique adapté sur mesure : dimensionnement, mise en service, service et entretien.
Questions fréquentes
Plus d'informations?
Remplissez le formulaire ci-dessous et nous prenons contact avec vous.
