
Soort project: Vervanging, verduurzamen
Sales Engineer A.O. Smith: Ronald Batenburg
In samenwerking met:Kuijpers
Projectleider Kuijpers: Dirk de Jong

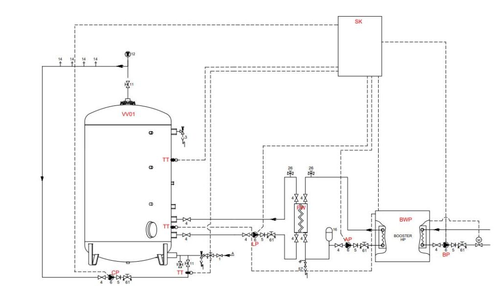
Het motto van Het Scheepvaartmuseum luidt: “water verbindt werelden”. En dat willen ze graag zo ecologisch mogelijk aangrijpen. Doel van het museum is dan ook om in 2030 een eco-positief museum te zijn. Om dat te bereiken gaan ze stap voor stap te werk en wordt alles onder de duurzame loep genomen. Al in 2019 heeft het museum gekozen voor het pad van verduurzaming op het gebied van warm tapwater. Tijdelijk hebben ze toen de oud gasketel vervangen voor een aantal kleine HR-ketels. Direct daarna zijn ze verder gaan zoeken naar een gas-loze duurzame warm tapwater oplossing.
Op maat gemaakte schakelkast

De firma Kuijpers was de ideale partner voor dit project en ging samen met onze Sales Engineer op zoek naar de best mogelijke oplossing voor het museum. Daarbij was het cruciaal om een oplossing te vinden die niet alleen voldeed aan de eisen van de klant, maar ook naadloos aansloot op de bestaande WKO-installatie. Ons ervaren Engineeringsteam werkte het systeem en de regeling tot in detail uit, waarna onze Project Engineer het, na een vakkundige installatie, succesvol in bedrijf stelde. Dankzij de prettige en nauwe samenwerking tussen beide partijen is dit project een groot succes geworden.