Installateur:

Groothandel:

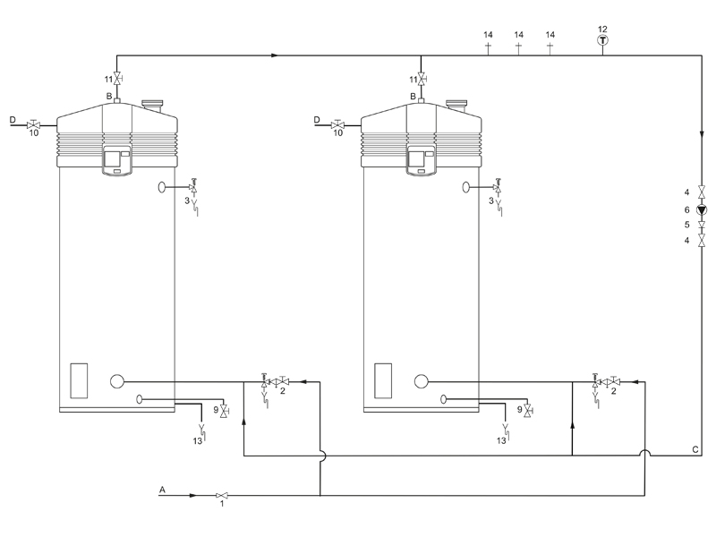
Een hotel in het zuiden van het land besloot dat de warmwatervoorziening van het hotel aan vervanging toe was. Ze wilden graag het indirecte boiler systeem verduurzamen. Een indirect systeem is een installatie waarin een warm water vat aangesloten wordt op de verwarmingsinstallatie om zo warm water te bereiden. Een dergelijke installatie is heel geschikt voor verwarming, maar zeer inefficiënt voor het maken van warm tapwater (sanitair), want feitelijk verwarm je het water niet rechtstreeks, maar via een ander medium. Je kunt dit vergelijken met het verwarmen van water in een pannetje met water. Daarbij gaat heel veel energie verloren.
Meer weten over de voordelen van direct vs. indirect verwarmen?
Door de indirecte oplossing te vervangen door een directe oplossing met hoog rendement gasboilers, realiseerde dit hotel een duurzamer systeem voor het warme tapwater. Precies dat deel van de installatie dat tot dan toe het minst energiezuinig was, terwijl warm tapwater in een hotel vaak een groter deel van de energiebehoefte vraagt dan de ruimteverwarming. Daar komt nog bij dat de isolatie van hotels (e.a. gebouwen) steeds beter wordt zodat er voor ruimteverwarming steeds minder energie nodig is.
Een ander belangrijk punt is dat in een hotel altijd sprake is van piekmomenten met betrekking tot het warme tapwater. In de ochtend én in de avond moet een warmwatersysteem kunnen pieken. Dat betekent een grote benodigde capaciteit gedurende twee korte periodes. Voor de ruimteverwarming geldt dat helemaal niet. Die kan gedurende een heel lange tijd een bepaald temperatuurniveau bereiken en behouden. Daar is veel minder capaciteit voor nodig. Door beide systemen los te trekken kan voor allebei de beste energieprestatie worden geïnstalleerd. En dat ziet het hotel terug in de energierekening!
Installatie tekening / principe schema
